Skip to main content
Elvis Elvis
Menu
Search
Search
Search
Search
User account menu
Log in
Breadcrumb
Home
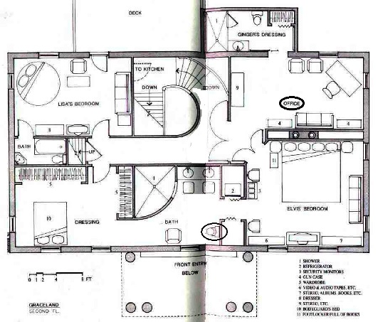
Graceland Upstairs
By
tzeruf
, 22 November 2025
Graceland Upstairs
Log in
to post comments
Comments
Tuning Voice
Simple Tuning
Standard Tuning
Perfect Pitch
Singing
The Beat
Vibrato
Volume Dynamics
Comments